View Photos
46 Gresham Street Part of Gresham Street Estate
London, EC2V
The Space
High Quality Fully Fitted and Furnished Office Floors Located Opposite the historic Guildhall
At a glance
| Property Type | Office |
| Tenure | To Let |
| Size | 890 sq ft |
| Rent | £57.50 per sq ft |
| Business Rates | 18.51 sqft |
| Service Charge | 17.1 sqft |
| Energy Performance Rating | This property has been graded as C (63) |
Key Points
Excellent City core location
High quality CatB office accommodation
Fibre enabled (via Colt)
New flexible lease directly from the Landlord
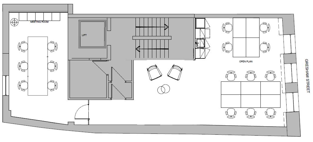
Available area
The accommodation comprises of the following
| Name | sq ft | sq m | Availability |
| 2nd | 890 | 82.68 | Coming Soon |
| Total | 890 | 82.68 |
Description
The period style property which forms part of Gresham Street Estate, is located in the City core and just a short walk from the Royal Exchange, Bank of England and St Paul's.
The Location
Surrounded by a variety of high quality retail, including banks and eateries in nearby Cheapside and New Change. These include Cabotte, The Anthologist, Goodmans, Soho Coffee Co, Costa Coffee and Pret a Manger. The property is also a short walk from the historic building which now houses The Ned and which offers a large selection of high end restaurants and also a Hotel. The property is served by a number of transport options, located just a short walk in any direction from an underground station, which include Moorgate to the north, St Paul's to the west, Cannon Street to the south and Bank to the east.
Specifications
Fully fitted space with large boardroom and modern kitchenette. Air-conditioning LED suspended lighting Passenger lift
Viewings
By appointment only, via joint sole agents, Kinney Green and Gryphon Property Partners.
Viewing & Further Information:
For further information, or if you would like to arrange a viewing, please contact our agents:
Video
Enquire Now
Contact one of our agents by phone or complete the form below
Charles Fogg
Tel: 020 7643 1521
Mobile: 07841 782 124